
概述:
QZG型自动供水设备是一种由隔膜式气压罐、水泵及电控柜等联合组成的单元式隔膜气压供水装置。其特点是:结构紧凑、布置灵活、安装简便、价格便宜、维修方便:隔膜气压供水装置实现自动操作,管理简单,安全可靠。
用于高层建筑:
可取代高位水箱,节省技术层的占用面积,并为建筑物抗震设防提供方便、降低建筑物投资,并能解决顶层消防压力问题。用于工矿村镇供水:
可取代水塔,适应发展形势,逐步扩大供水规模和提高供水压力,降低早期建设规模和基建投资。
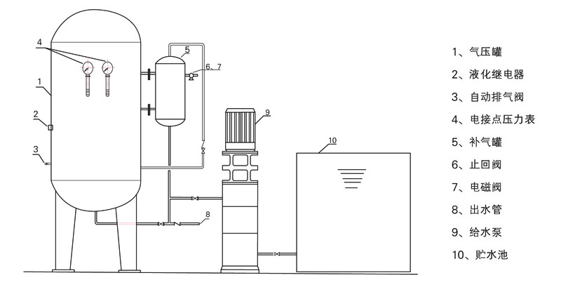
隔膜气压供水装置。一次充气常年使用,水质不受污染。
工作原理:
隔膜式气压供水装置以隔膜为界分为两室:储水室内储气室。在恒温条件下,当水室的水压升高时,气室的气体被压缩,隔膜伸张,水室进水;当水压下降时,气室气体膨胀,隔膜收、缩,水室出水。在供水泵所位于的最高和最低供水压力下形成的容器内的气体体积变量就是该装置的工作调节容量。
当系统耗水量小于水泵的供水量时,系统水压逐渐升高。当系统压力达到设定的最高工作压力时,压力继电器发生动作,使水泵停止工作。在水泵不工作时,由罐内的储存水流向系统供水。随着罐内储水量的减少,系统压力逐渐下降。当系统压力降至设定的最低工作压力时,压力继电器发生动作,使水泵投入工作。隔膜气压供水装置以此往复工作,达到在设定工作压力范围内自动连续供水的目的。
特点:
灵活机动、安装位置不受限制、且能确保用水点和消防用水系统的多种技术参数要求,供水安全可靠。
采用的控制系统简单实用、使用方便、运行可靠。
泵组配用DL型优质立式水泵,有效率高、结构紧凑、占地面积小等特点。泵及其管道连接均组装成一体出厂,现场安装快。
可代替高位水箱和水塔,有利于结构抗震、不影响建筑物美观。




